Объявление
Бункеры-бомбоубежища мобильные противоатомные. - Прочее для строительства и ремонта
Продам, предлагаю - частное лицо: Прочее для строительства и ремонта, Украина, Сумы и областьКод: 290976 Создано: 02-08-2018 08:51
Цена: 4 500 USD $
|
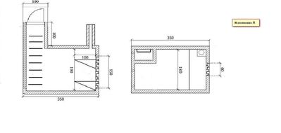
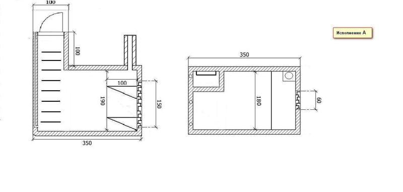
Изготовление железобетонных бункеров-бомбоубежищь мобильных (БУМ). Данные бункеры на 4 и 6 человек можно транспортировать автотранспортом в любую точку Украины (Земли), для их установки требуется только кран и экскаватор. ЛОЦНМ «Сфера» г. Сумы (093) 5745300, (066) 9615770, (067) 3970227, (0542) 683367, 654885 www.sfera-pump.in.ua К бункеризации ВСЕЙ страны –БУДЬ ГОТОВ. Программа "Бункер-Waffe" -в жизнь. |
|
Картинки
Контактные данные
| Имя: |
шаповалов олег аркадьевич |
|
| Контактный телефон: |
(0542) 68-33-67, 65-48-85 |
|
| Мобильный телефон: |
(093)5745300, (066)9615770, (067)3970227 |


